/

Monanny, Carrickmacross, Co. Monaghan A81F3C8

€POA

5 Bed

124.7 Acres

share

Property Features

  • Auction 21st October 2025 at 3pm
  • Stunning five-bedroom Victorian residence approached by a sweeping avenue and set on c. 2.7 acres of lawns and grounds
  • Elegant accommodation with period proportions, high ceilings, sash windows, and feature fireplaces
  • Fine cut stone courtyard with recently renovated building offering potential for accommodation or office use
  • Exceptional range of farm buildings with extensive cattle accommodation and handling facilities
  • Prime lands extending to c. 124.7 acres in one block with extensive road frontage and strategic location adjoining Carrickmacross

Property Description

Spread the love

AUCTION – TUESDAY 21ST OCTOBER 2025 AT 3PM IN THE SHIRLEY ARMS HOTEL, CARRICKMACROSS

124.7 ACRE RESIDENTIAL FARM IN LOTS

Offered in the Following Lots:
Lot 1: Five-bedroom Victorian residence on c. 2.7 acres
Lot 2: c. 98 acres with cut-stone courtyard and cattle accommodation
Lot 3: c. 24 acres

Monanny is a spectacular residential and agricultural holding extending to 124.7 acres and is offered for sale in three lots.

It combines a fine Victorian residence approached by an impressive avenue, a cut-stone courtyard with a high-quality range of farm buildings, and prime lands surrounding the yard in a highly desirable block.

Located on the outskirts of Carrickmacross, the property enjoys a commanding setting within minutes of the town centre and just off the N2, the main route linking Dublin with Northern Ireland.

The lands also benefit from a history of zoning for Industry, Enterprise and Employment under the Monaghan County Development Plan 2019-2025, which further underlines its strategic value.

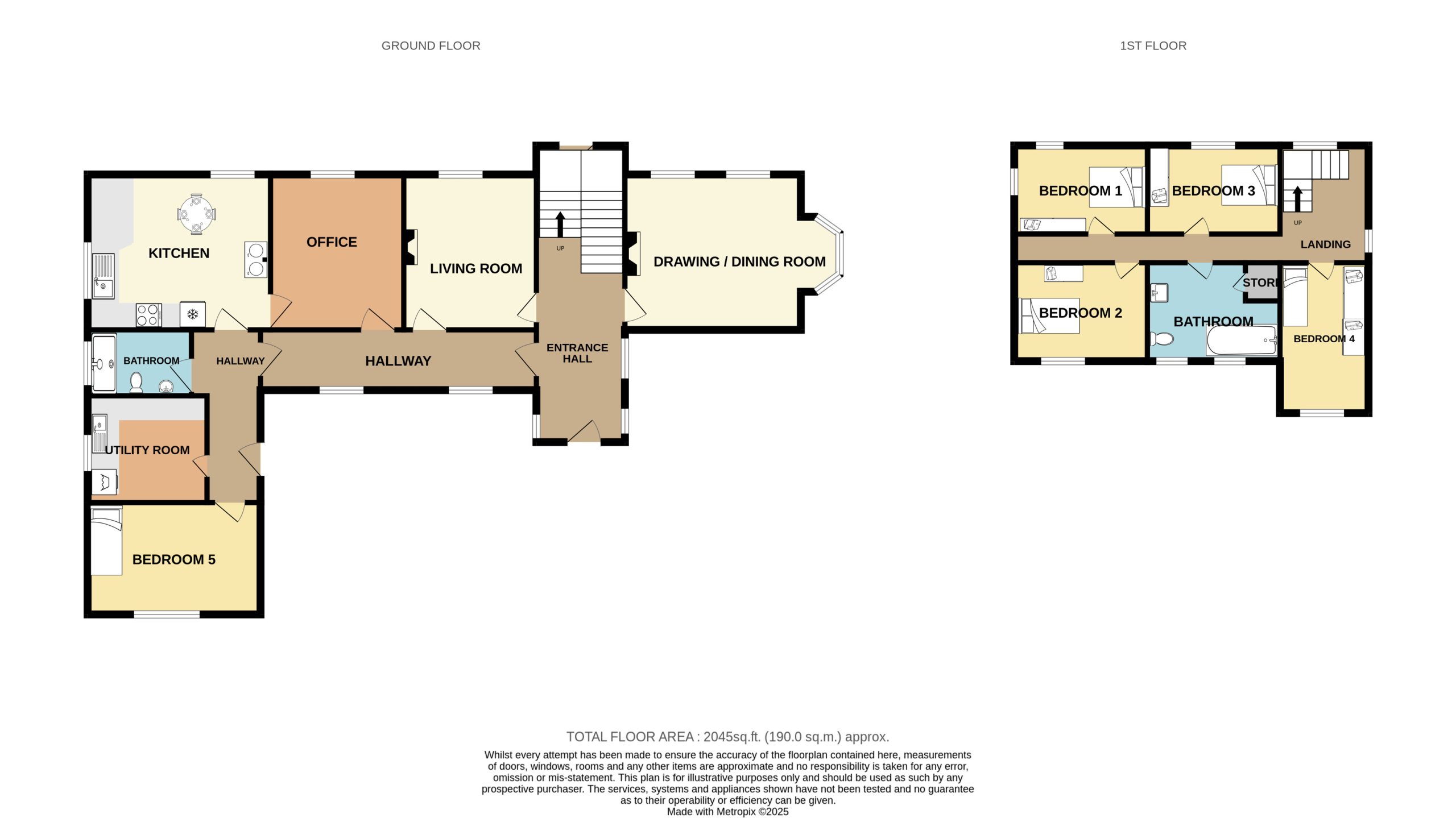
THE RESIDENCE

The residence, standing proudly at the head of a long avenue lined with timber fencing and traditional period lamps, makes a striking first impression.

Set amid manicured lawns and sheltered by mature trees, the house carries the timeless proportions of the Victorian style, softened by Tudor details and sash windows. Its presence is unmistakable. The gravel sweep to the front complements the faé§ade, and on entering the home you are immediately struck by the sense of scale and elegance.

The central hall with its prominent staircase forms the heart of the house, flanked on either side by large reception rooms with high ceilings, coving, and sash windows allowing natural light to flood in.

The drawing room, with its bay window overlooking the surrounding landscape, features an ornate marble fireplace. The lounge, a cosy retreat, carries the warmth of a traditional open fire framed by a fine mantle.

Beyond lies the study, a peaceful room with tranquil views, while the kitchen retains the essence of a true country house with fitted floor to ceiling units, wooden panelling, and the ever essential AGA at its centre. A utility, guest WC, and ground floor bedroom provide convenience and practicality.

Upstairs the sense of proportion continues, with a broad landing leading to four large bedrooms, each framed by views of the rolling farmland, and a main bathroom completing the accommodation. The orientation of the house is south facing to the rear, ensuring that the principal rooms are bathed in natural light.

THE FARMYARD

The farmyard is entered through a fine cut stone gateway and is laid out with neatness and order.

At its centre lies a beautifully presented courtyard flanked by traditional cut stone outbuildings, one of which has been renovated to a high standard and now offers superb potential as a home office, staff accommodation or guest quarters.

The principal farm buildings are substantial and versatile, including a two bay deep by four bay long hay shed with double lean to, and a six bay slatted shed with double bay pens to either side of a central feed passage, enhanced by full length external troughs and a galvanised canopy. Handling facilities are excellent, and the overall layout of the yard makes it both functional and impressive. For our equine enthusiasts there is also a range of stable boxes which have been home to proven winners.

THE LANDS

The lands, extending to c. 124.7 acres, lie in one block and are of exceptional quality. They benefit from extensive frontage to the L4520 and R179, with the N2 adjacent to the land’s boundary.

Adjoining lot 3 is Carrick Emmets GAA grounds. The property features gently rolling land, with well proportioned fields bounded by mature hedgerows while the soils are rich and free draining, lending themselves equally well to beef, dairying or tillage. With the yard so centrally located, the farm is ideally suited as a greenfield platform for a dairy start up or to continue as a first class beef or tillage enterprise.

The Lands are Offered in the Following Lots:

Lot 1: Five-bedroom Victorian residence on c. 2.7 acres
Lot 2: c. 98 acres with cut-stone courtyard and cattle accommodation
Lot 3: c. 24 acres

AUCTION DETAILS:

The Auction will take place on Tuesday 21st October 2025 at 3pm at The Shirley Arms Hotel, Carrickmacross. Pre-Registration for Online Bidding by 20th October 2025

SOLICITOR DETAILS

Solicitors: Patrick J Carolan & Co., Bailieboro, Co. Cavan


Floorplans

    How much is your property worth?

    Free Valuation